Product overview of Globe Valve J41H/Y:
Product model: J41H/Y
Nominal diameter: DN50 ~ 400 mm
Pressure range: PN10 ~ 64 MPa
Operating temperature: -196℃ ~ +600℃
Drive mode: manual, bevel gear, electric
Main material: carbon steel, stainless steel, alloy steel
Design and manufacture: GB12235
Structure length: GB12221
Flange size: GB9113 JB79
Pressure - temperature: GB9131
Test - inspection: GB/T13927 JB/T9092
Product details of Globe Valve J41H/Y:
J41H/Y GB globe valve introduction
J41H/Y GB globe valve produced and sold by TopVal is a mandatory sealed valve, so the valve is closed, the pressure must be applied to the valve to force the sealing surface does not leak. When the medium from below the valve into the valve, the operating force needed to overcome the resistance is the valve stem and packing friction and the thrust generated by the media pressure, off the valve force than the valve open, so the valve stem The diameter should be larger, otherwise it will happen valve stem bend. In recent years, from the self-sealing valve appears, the flange of the media cut off the valve to change from the top of the valve into the valve chamber, then under medium pressure, the valve closing force is small, and open the valve force, valve The diameter of the rod can be reduced accordingly. At the same time, in the medium, this form of stainless steel pneumatic valve is also more stringent.
J41H/Y GB globe valve Pressure test
| Nominal pressure | 1.6 | 2.5 | 4.0 | 6.4 | 10.0 | 16.0 |
| Strength test | 2.4 | 3.8 | 6.0 | 9.6 | 15.0 | 24.0 |
| Water seal test | 1.8 | 2.8 | 4.4 | 7.4 | 11.0 | 18.0 |
| Seal test | 1.8 | 2.8 | 4.4 | 7.04 | 11.0 | 18.0 |
| Gas seal test | 0.4-0.7 | |||||
J41H/Y GB globe valve parts and materials performance
| Body cover pull | Valve stem | Sealing surface | Gasket (ring) | filler | Operating temperature ℃ | Suitable media |
| WCB | 2Cr13 | 13Cr STL Body Material Nylon | Reinforced flexible graphite 1Crl3 / flexible graphite 08 mild steel 0Cr18Ni9Ti OCr18Ni12Mo2Ti | Flexible graphite reinforced flexible graphite SFB-260 SFP-260 | ≤425 | Water, steam, oil |
| WC1 | 38CrMoAI 25Cr2MoV | ≤450 | ||||
| WC6 | ≤540 | |||||
| WC9 | ≤570 | |||||
| ZGCr5Mo | ≤540 | |||||
| ZG1Cr18Ni9Ti | 1Cr18Ni9Ti | ≤200 | Nitric acids | |||
| ZGCr18Ni12Mo2Ti | 1C18Ni12Mo2Ti | ≤200 | Acetic acid |
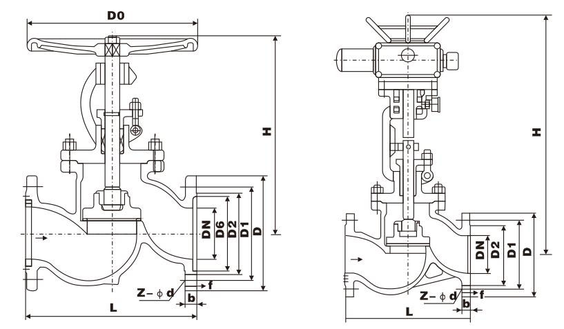
J41H/Y GB globe valve main shape and connection dimensions

DN | Main dimensions and connection dimensions | ||||||||
L | D | D1 | D2 | b | f | Zd | H | D0 | |
J41H / Y-16C J41W-16P J41W-16R J41Y-16I | |||||||||
10 | 130 | 90 | 60 | 40 | 14 | 2 | 4-14 | 198 | 120 |
15 | 130 | 95 | 65 | 45 | 16 | 2 | 4-14 | 218 | 120 |
20 | 150 | 105 | 75 | 55 | 16 | 2 | 4-14 | 258 | 140 |
25 | 160 | 115 | 85 | 65 | 16 | 2 | 4-14 | 275 | 160 |
32 | 180 | 135 | 100 | 78 | 18 | 2 | 4-18 | 280 | 180 |
40 | 200 | 145 | 110 | 85 | 18 | 3 | 4-18 | 330 | 200 |
50 | 230 | 160 | 125 | 100 | 18 | 3 | 4-18 | 350 | 240 |
65 | 290 | 180 | 145 | 120 | 18 | 3 | 4-18 | 355 | 280 |
80 | 310 | 195 | 160 | 135 | 20 | 3 | 8-18 | 400 | 280 |
100 | 350 | 215 | 180 | 155 | 22 | 3 | 8-18 | 415 | 320 |
125 | 400 | 245 | 210 | 185 | 24 | 3 | 8-23 | 460 | 360 |
150 | 480 | 280 | 240 | 210 | 24 | 3 | 12-23 | 510 | 400 |
200 | 600 | 335 | 295 | 265 | 26 | 3 | 12-23 | 710 | 400 |
250 | 650 | 405 | 355 | 320 | 30 | 3 | 12-23 | 786 | 450 |
300 | 750 | 460 | 410 | 375 | 30 | 3 | 12-23 | 925 | 500 |
DN | Main dimensions and connection dimensions | ||||||||||
L | D | D1 | D2 | b | f | Zd | H hand | H electricity | D | Electric device | |
J41H / Y-25 J41W-25P J41W-25R J41Y-25I J941H / Y-25 J941W-25P J941W-25R J941W-25I | |||||||||||
10 | 130 | 90 | 60 | 40 | 16 | 2 | 4-14 | 198 | - | 120 | - |
15 | 130 | 95 | 65 | 45 | 16 | 2 | 4-14 | 218 | - | 120 | - |
20 | 150 | 105 | 75 | 55 | 16 | 2 | 4-14 | 258 | - | 140 | - |
25 | 160 | 115 | 85 | 65 | 16 | 2 | 4-14 | 275 | - | 160 | - |
32 | 180 | 135 | 100 | 78 | 18 | 2 | 4-18 | 280 | - | 180 | - |
40 | 200 | 145 | 110 | 85 | 18 | 3 | 4-18 | 330 | - | 200 | - |
50 | 230 | 160 | 125 | 100 | 20 | 3 | 4-18 | 350 | 645 | 240 | DZW10 |
65 | 290 | 180 | 145 | 120 | 22 | 3 | 8-18 | 400 | 690 | 280 | DZW10 |
80 | 310 | 195 | 160 | 135 | 22 | 3 | 8-18 | 355 | 715 | 280 | DZW15 |
100 | 350 | 230 | 190 | 160 | 24 | 3 | 8-23 | 415 | 770 | 320 | DZW20 |
125 | 400 | 270 | 220 | 188 | 28 | 3 | 8-25 | 460 | 780 | 360 | DZW30 |
150 | 480 | 300 | 250 | 218 | 30 | 3 | 8-25 | 510 | 875 | 400 | DZW45 |
200 | 600 | 360 | 310 | 278 | 34 | 3 | 12-25 | 710 | 967 | 400 | DZW60 |
250 | 650 | 425 | 370 | 332 | 36 | 3 | 12-30 | 786 | - | 450 | - |
300 | 750 | 485 | 430 | 390 | 40 | 4 | 12-30 | 925 | - | 500 | - |
DN | Main dimensions and connection dimensions | ||||||||||||
L | D | D1 | D2 | D6 | b | f | f2 | Zd | H hand | H electricity | D | Electric device | |
J41H / Y-40 J41W-40P J41W-40R J41Y-40I J941H / Y-40 J941W-40P J941W-40R J941W-40I | |||||||||||||
10 | 130 | 90 | 60 | 40 | 35 | 16 | 2 | 2 | 4-14 | 198 | - | 120 | - |
15 | 130 | 95 | 65 | 45 | 40 | 16 | 2 | 4 | 4-14 | 233 | - | 120 | - |
20 | 150 | 105 | 75 | 55 | 51 | 16 | 2 | 4 | 4-14 | 275 | - | 140 | - |
25 | 160 | 115 | 85 | 65 | 58 | 16 | 2 | 4 | 4-14 | 285 | - | 160 | - |
32 | 180 | 135 | 100 | 78 | 66 | 18 | 2 | 4 | 4-18 | 302 | - | 180 | - |
40 | 200 | 145 | 110 | 85 | 76 | 18 | 3 | 4 | 4-18 | 355 | - | 200 | - |
50 | 230 | 160 | 125 | 100 | 88 | 20 | 3 | 4 | 4-18 | 373 | 645 | 240 | DZW10 |
65 | 290 | 180 | 145 | 120 | 110 | 22 | 3 | 4 | 4-18 | 408 | 690 | 280 | DZW10 |
80 | 310 | 195 | 160 | 135 | 121 | 22 | 3 | 4 | 8-18 | 436 | 715 | 320 | DZW20 |
100 | 350 | 230 | 190 | 160 | 150 | 24 | 3 | 4.5 | 8-18 | 480 | 770 | 360 | DZW30 |
125 | 400 | 270 | 220 | 188 | 176 | 28 | 3 | 4.5 | 8-23 | 558 | 782 | 400 | DZW45 |
150 | 480 | 300 | 250 | 218 | 204 | 30 | 3 | 4.5 | 8-25 | 611 | 875 | 400 | DZW60 |
200 | 600 | 375 | 320 | 282 | 260 | 38 | 3 | 4.5 | 12-30 | 720 | 1160 | 400 | DZW90 |
DN | Main dimensions and connection dimensions | |||||||||
L | D | D1 | D2 | D6 | b | Zd | H | H1 | D0 | |
J41H / Y-64 J941H / Y-64 J41Y-64I J941Y-64I | ||||||||||
15 | 170 | 105 | 75 | 55 | 41 | 18 | 414 | 195 | 210 | 140 |
20 | 190 | 125 | 90 | 68 | 51 | 20 | 418 | 228 | 248 | 160 |
25 | 210 | 135 | 100 | 78 | 58 | 22 | 418 | 250 | 275 | 180 |
32 | 230 | 150 | 110 | 82 | 66 | 24 | 423 | 325 | 355 | 200 |
40 | 260 | 165 | 125 | 95 | 76 | 24 | 423 | 360 | 395 | 240 |
50 | 300 | 175 | 135 | 105 | 88 | 26 | 423 | 410 | 450 | 280 |
65 | 340 | 200 | 160 | 130 | 110 | 28 | 823 | 450 | 494 | 320 |
80 | 380 | 210 | 170 | 140 | 121 | 30 | 823 | 485 | 485 | 360 |
100 | 430 | 250 | 200 | 168 | 150 | 32 | 825 | 537 | 537 | 400 |
150 | 550 | 340 | 280 | 240 | 204 | 38 | 834 | 646 | 646 | 450 |
200 | 650 | 405 | 345 | 300 | - | 44 | 1234 | 813 | 813 | 500 |
J41H / Y-100 J941H / Y-100 J41Y-100I J941Y-100I | ||||||||||
15 | 170 | 105 | 75 | 55 | 40 | 20 | 414 | 195 | 210 | 100 |
20 | 190 | 125 | 90 | 68 | 51 | 22 | 418 | 228 | 248 | 120 |
25 | 210 | 135 | 100 | 78 | 58 | 24 | 418 | 250 | 275 | 160 |
32 | 230 | 150 | 110 | 82 | 66 | 24 | 423 | 326 | 348 | 200 |
40 | 260 | 165 | 125 | 95 | 76 | 26 | 423 | 359 | 388 | 240 |
50 | 300 | 195 | 145 | 112 | 88 | 28 | 425 | 414 | 448 | 280 |
65 | 340 | 220 | 170 | 138 | 110 | 32 | 825 | 434 | 477 | 320 |
80 | 380 | 230 | 180 | 148 | 121 | 34 | 825 | 547 | 598 | 400 |
100 | 430 | 265 | 210 | 172 | 150 | 38 | 830 | 621 | 685 | 450 |
125 | 500 | 310 | 250 | 210 | 176 | 42 | 834 | - | - | - |
150 | 550 | 350, | 290 | 250 | 204 | 46 | 1234 | 840 | - | - |
200 | 650 | 430 | 360 | 312 | 260 | 54 | 1241 | 925 | - | - |